
Rozostavaný 3+1 (85 m2) centrum Spišská Nová Ves
- Predaj
- 3-izbový byt
- 3 izb
- 100 m2
- Spišská Nová Ves
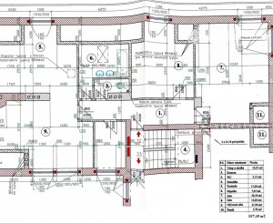
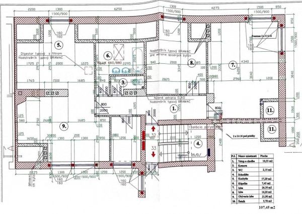
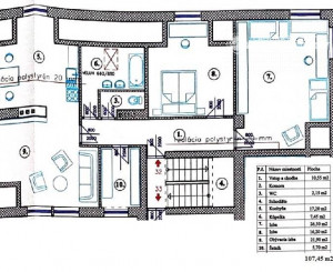
Číslo ponuky: 8204 - Ponúkame EXKLUZÍVNE NA PREDAJ ROZOSTAVANÝ 3-IZBOVÝ PODKROVNY BYT nachádzajúci sa v centre mesta Spišská Nová Ves, ulica J.Hanulu. Projektovaný byt s podlahovou plochou 107 m2 (bez plochy loggie 10 m2) sa nachádza v tehlovom bytovom dome s južnou orientáciou a zároveň s výhľadom na kostolnú vežu. Vstavba bytu do podkrovného priestoru je vo výstavbe na základe vydaného stavebného povolenia. Byt predstavuje výbornú príležitosť na pohodlné, pokojné bývanie vo VEĽKOMETRÁŽNOM MESTKOM TROJIZBOVOM BYTE S VLASTNÝM VYKUROVANÍM a ZAUJÍMAVÝMI VÝHĽADMI na kostol a južnú panorámu mesta.
Projekt bytu je MODERNE DISPOZIČNE RIEŠENÝ - pozostáva z priestrannej obývačky spojenej s kuchyňou (spolu 39 m2). V obývacej miestnosti je veľká presklenná plocha smerom na juh. V byte sú ďalšie 2 obytné miestnosti - spálňa a detská izba. Výhodou je ďalšia samostatná miestnosť, ktorá môže slúžiť ako šatník alebo pracovňa.
Byt bude mať samostatné vykurovanie, pričom ako vykurovacie teleso bolo projektované el. kotol. K bytu prislúcha pivnica s rozlohou 10 m2. JEDNOZNAČNOU VÝHODOU JE MOŽNOSŤ DOKONČENIA STAVBY PRESNE PODĽA VLASTNÝCH PREDSTÁV V TOP LOKALITA V CENTRE s výbornou občianskou vybavenosťou.
Informácia o cene bytu v RK.
Interné ID: | 8390 |
---|---|
Ulica: | Hanulova |
Obec: | Spišská Nová Ves |
Okres: | Spišská Nová Ves |
Kraj: | Košický kraj |
Druh: | Byty |
Typ: | Predaj |
Typ bytu: | 3-izbový byt |