Používame cookies

Súbory cookie a ďalšie technológie sledovania používame na zlepšenie vášho zážitku z prehliadania našich webových stránok, na to, aby sme vám zobrazovali prispôsobený obsah a cielené reklamy, na analýzu návštevnosti našich webových stránok a na pochopenie toho, odkiaľ naši návštevníci prichádzajú. Viac info

PRENÁJOM! 2-izbový byt (65 m2) s loggiou Zelené údolie Spišská Nová Ves

Popis nehnuteľnosti

Zdieľať na Facebooku

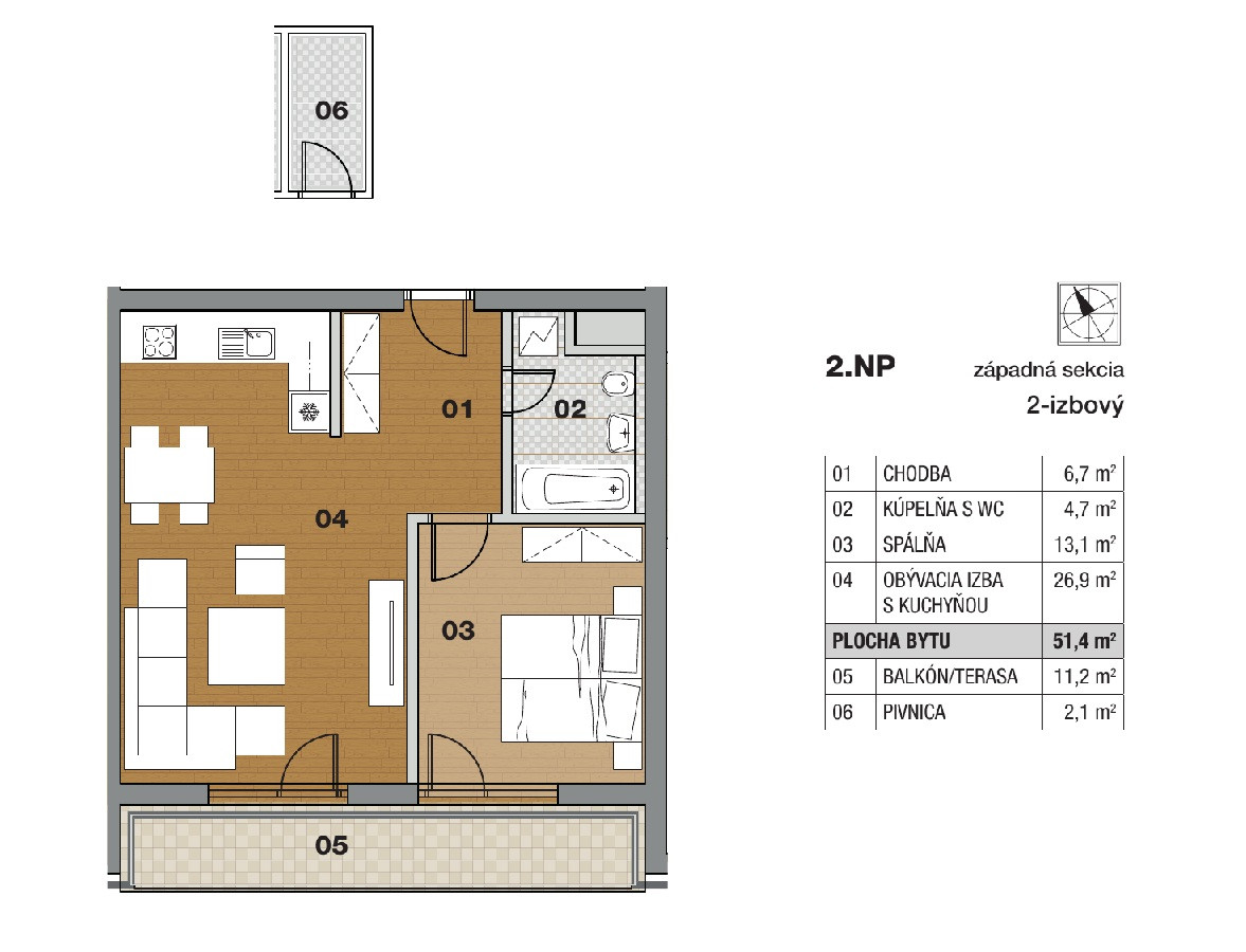
Číslo ponuky: 9210 - Ponúkame EXKLUZÍVNE NA PRENÁJOM MODERNE A VKUSNE ZARIADENÝ DVOJIZBOVÝ BYT V NOVOSTAVBE S VNÚTORNÝM PARKOVANÍM v Spišskej Novej Vsi. Veľký dvojizbový byt s celkovou výmerou 65 m² (vrátane loggie a pivnice) sa nachádza v novostavbe bytového domu v projekte Zelené údolie, kolaudovanom v roku 2024. Slnečný byt je orientovaný na juh. Samozrejmosťou je plne vybavená kuchyňa s vstavanými spotrebičmi (indukčná varná doska, elektrická rúra, umývačka riadu, mikrovlnná rúra, digestor, granitový drez). Výraznou výhodou je priestranná loggia s rozlohou 11 m², slnečná orientácia bytu. 

V cene nájmu je vnútorného parkovania v podzemnej garáži. 

Byt sa prenajíma so zariadením viď foto. ( okrem konferenčného stolíka, pracovné stoly)  Byt sa nachádza na 2.poschodí. Cena nájmu je 680 EUR mesačne vrátane energií a internetu. Depozit - 2 mesačný.  Výhodou je lokalita s výbornou občianskou vybavenosťou - škola, škôlka, pošta, zdravotné a nákupné stredisko.

Byt je voľný od 1.04.2026

 

Odporúčame nehnuteľnosť pre nájomcov hľadajúcich komfortné bývanie v novom bytovom dome s moderným dizajnom.

Vlastnosti

Status:
aktívne
Vlastníctvo:
osobné
Úžitková plocha:
65 m2
Zastavaná plocha:
65 m2
Stav:
novostavba
Počet izieb:
2
Typ budovy:
tehla
Loggia:
áno
Garáž:
áno
Pivnica:
áno
Výťah:
áno
Pozícia:
vyššie poschodie
Celková plocha:
65 m2
Plocha loggie:
11 m2
680 €/mesiac
Interné ID: 9208
Obec: Spišská Nová Ves
Okres: Spišská Nová Ves
Kraj: Košický kraj
Druh: Byty
Typ: Prenájom
Typ bytu: 2-izbový byt

Ing. Mária Karchňáková

  • Slovensky
  • Česky
  • Deutsch
  • Українська

Radi Vám poradíme