Používame cookies

Súbory cookie a ďalšie technológie sledovania používame na zlepšenie vášho zážitku z prehliadania našich webových stránok, na to, aby sme vám zobrazovali prispôsobený obsah a cielené reklamy, na analýzu návštevnosti našich webových stránok a na pochopenie toho, odkiaľ naši návštevníci prichádzajú. Viac info

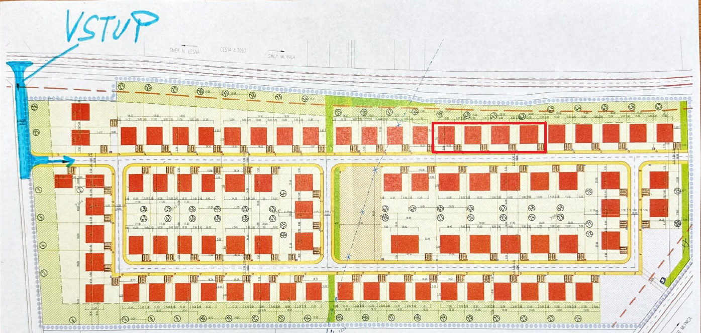
Zvýhodnený predaj 4 stavebných pozemkov so sieťami v obci Mlynica

Popis nehnuteľnosti

Zdieľať na Facebooku

Na PREDAJ EXKLUZÍVNE ponúkame 4 stavebné pozemky (cena vrátane inžnierskych sietí), situované v obci Mlynica, len na skok od Popradu a Vysokých Tatier. 

Výhody tejto ponuky:

  • Zvýhodnené podmienky na kúpu pozemkov - viac info v realitnej kancelárii.
  • Stavebné povolenia: K projektu IBV Mlynica, v ktorej sa pozemky nachádzajú, sú už vydané a právoplatné stavebné povolenia na výstavbu všetkých inžinierskych sietí a stavebných objektov, ktorých realizácia práve prebieha  s predpokladanou dobou ukončenia a skolaudovania - december 2026,  čo robí túto ponuku ešte zaujímavejšou. Každý vlastník pozemku si môže začať pripravovať vlastnú dokumentáciu potrebnú k vydaniu stavebného povolenia na výstavbu domu.
     
  • Výmera pozemkov: Na predaj ponúkame pozemky s výmerami od 639 m² až 662 mktoré poskytnú dostatok priestoru pre rodinný dom s veľkou záhradou.
  • Vyvraciame fámy o nedostatku vody: Pre projekt IBV Mlynica je zaručená dodávka pitnej vody z novopostaveného vodojemu.
  • Lokalita: Obec Mlynica sa nachádza len 10 minút jazdy autom od mesta Poprad a 15 minút od lyžiarskych stredísk a turistických trás vo Vysokých Tatrách. Táto lokalita je ideálnou voľbou pre tých, ktorí hľadajú pokojné bývanie v srdci prírody, no zároveň s výbornou dostupnosťou do mesta Poprad alebo na diaľnicu D1 smerom do Bratislavy či Košíc. Blízko sa nachádza aj letisko v Poprade, čo zvyšuje atraktivitu tejto lokality.
  • Výhľad: Po kúpe jedného z týchto pozemkov sa budete každé ráno zobúdzať s krásnym výhľadom na tatranské štíty priamo z Vašej záhrady !

Nechajte sa očariť čistým vzduchom, panoramatickým výhľadom na Tatry a pokojom dedinského života. V prípade záujmu o bližšie informácie alebo obhliadku nás neváhajte kontaktovať !

Vlastnosti

Status:
aktívne
Vlastníctvo:
neurčené
Typ zeme:
rovina
Inžinierske siete:
áno
Voda:
áno
Elektrika:
áno
Plyn:
áno
Kanalizácia:
áno
145 €/m2
Interné ID: 9119
Obec: Poprad
Okres: Poprad
Kraj: Prešovský kraj
Druh: Pozemky
Typ: Predaj
Typ pozemku: Stavebný pozemok

JUDr. David Kollár

  • Slovensky
  • Česky
  • English
  • Українська

Radi Vám poradíme