Používame cookies

Súbory cookie a ďalšie technológie sledovania používame na zlepšenie vášho zážitku z prehliadania našich webových stránok, na to, aby sme vám zobrazovali prispôsobený obsah a cielené reklamy, na analýzu návštevnosti našich webových stránok a na pochopenie toho, odkiaľ naši návštevníci prichádzajú. Viac info

Polyfunkčný objekt, Novoveská Huta

Popis nehnuteľnosti

Zdieľať na Facebooku

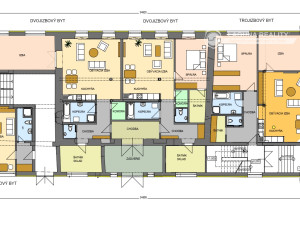
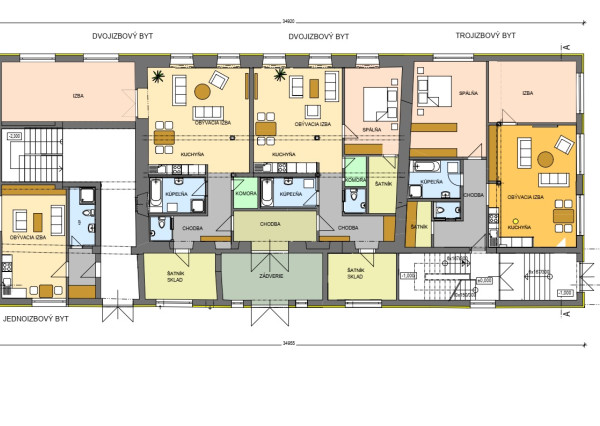
Číslo ponuky: 8850 - Ponúkame Vám na predaj polyfunkčnú budovu vo vyhľadávanej lokalite Novoveská Huta 7 km od Spišskej Novej Vsi. Budova má pripojenie na všetky IS + plyn. K objektu je asfaltová príjazdová cesta so závorami na jej konci. Objekt sa rozkladá na 4 podlažiach. Polyfunkčný objekt je po začatej rekonštrukcii. Na budove je nová strecha. Vhodný na rôzne účely. K budove prislúcha veľký pozemok vhodný napríklad ako parkovisko, aj pre väčšie vozidlá (kamiónová doprava). Plocha pozemku je 1662 m2.

Vlastnosti

Status:
aktívne
Vlastníctvo:
korporácia
Úžitková plocha:
827 m2
Stav:
Vo výstavbe
Energetický certifikát:
žiadne
Celková plocha:
1662 m2

Hypotekárna kalkulačka

300 000 €
Interné ID: 8850
Mestská časť: Novoveská Huta
Obec: Spišská Nová Ves
Okres: Spišská Nová Ves
Kraj: Košický kraj
Druh: Objekty
Typ: Predaj
Typ objektu: Polyfunkčná budova

Ing. Martin Karchňák

  • Slovensky
  • Česky
  • English
  • Deutsch
  • Українська

Radi Vám poradíme